Quartier Bethanien – Moderne 2-Zimmer-Wohnung in historischer Klosteranlage
Preise
- Nettokaltmiete:
- 1.109 €
- Netto-Kaltmiete pro m²:
- 13 €
- monatl. Betriebs-/Nebenkosten:
- 171 €
- monatl. Heizkosten:
- 171 €
- Warmmiete:
- 1.451 €
- Kaution:
- 3.327 €
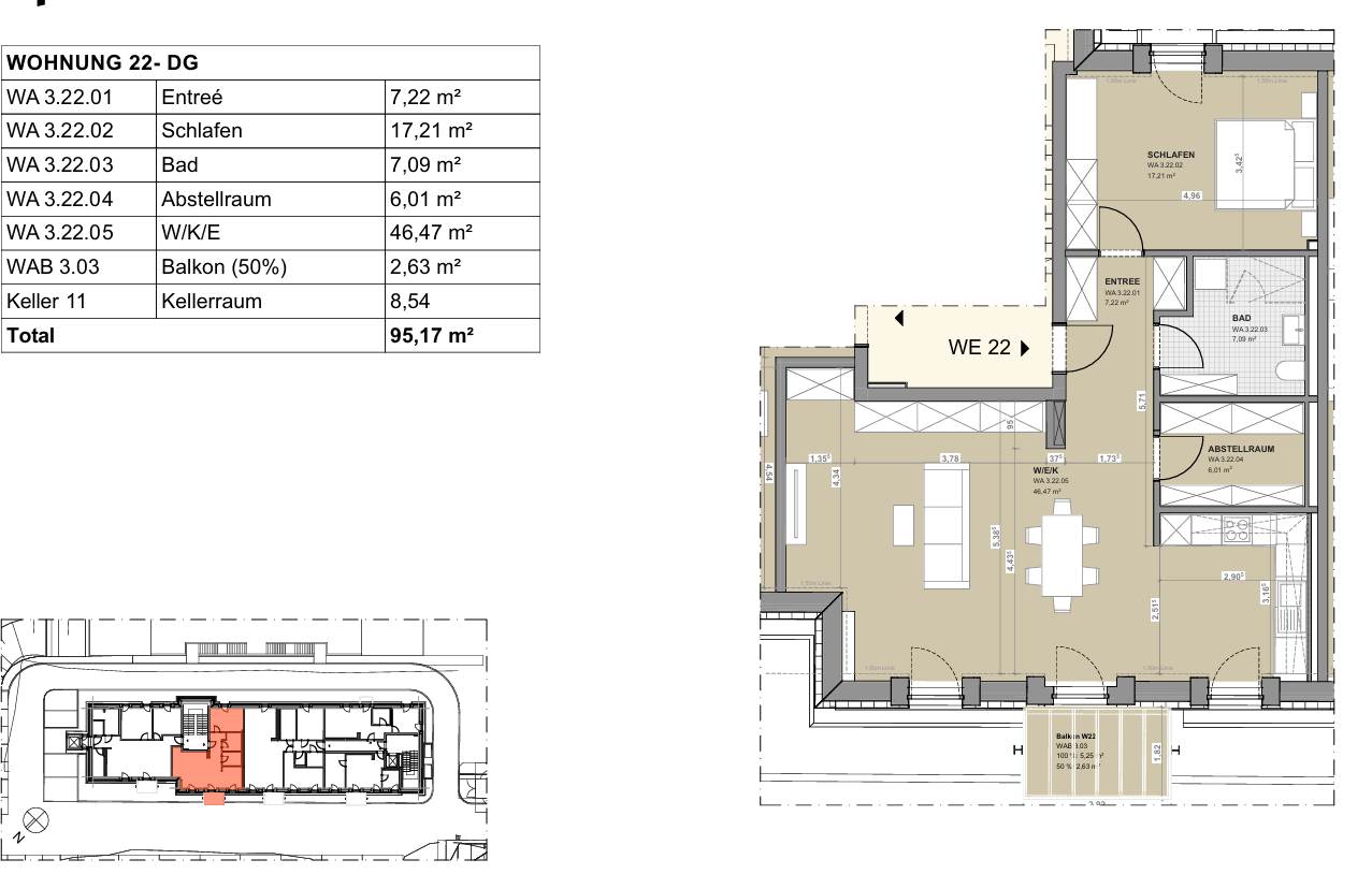
Flächen
- Wohnfläche:
- 85,31 m²
- Zimmer insgesamt:
- 2
- Balkone:
- 1
Ausstattung
Die Architektur verbindet historische Substanz mit moderner Leichtigkeit. Licht, großzügige Raumhöhen und sorgfältig ausgewählte Materialien schaffen eine Atmosphäre, die Ruhe und Offenheit ausstrahlt.
Die historische Anlage wird vollständig entkernt, saniert und neu strukturiert, sodass zeitgemäßer Wohnkomfort in einem Gebäude mit Charakter entsteht. Insgesamt entstehen 23 individuell geplante Wohnungen mit Wohnflächen zwischen 35 und 131 Quadratmetern – von der kompakten Zwei-Zimmer-Wohnung bis hin zur großzügigen Familienwohnung. Hohe Decken, natürliche Materialien und durchdachte Grundrisse prägen das besondere Raumgefühl. Vor allem im Dachgeschoss kommen die Qualitäten des Bestands eindrucksvoll zur Geltung: Sichtbare Holzkonstruktionen und eine luftige Raumhöhe verleihen den Wohnungen eine warme, natürliche Anmutung.
Zur Verfügung stehen noch 6 Zwei-Zimmer-Wohnungen mit Wohnflächen von ca. 35 bis 60 m². Bei Bedarf können separate Stellplätze auf dem Areal angemietet werden. Zusätzlich besteht die Möglichkeit, ein individuelles Pflege- und Unterstützungsangebot der Pflegegesellschaft St. Martin GmbH in Anspruch zu nehmen – ideal für ein selbstbestimmtes Wohnen mit optionaler Unterstützung. Ab dem 01.08. können Sie Ihr neues Zuhause beziehen und den besonderen Charme dieses historischen Gebäudes mit moderner Ausstattung genießen.
- Heizungsart: Fußbodenheizung
- Befeuerung: Elektro, Erdwärme
- Badausstattung: Dusche
Zustand
- Baujahr:
- 1922
- Zustand:
- Erstbezug
- Keller:
- voll unterkellert
Lage & Infrastruktur
Im Ortsteil Trier-Kürenz erwartet Sie eine einzigartige Wohnlage:
Ruhig, grün, in Innenstadt-Nähe und mit direktem Zugang zum historischen Klosterareal und seinem idyllischen Innenhof.
Das Projekt befindet sich im beliebten Stadtteil Kürenz mit rund 10.000 Einwohnern. Die Lage am Waldrand, umgeben von Weinbergen und dem Kürenzer Schlosspark, vermittelt ein ruhiges, grünes Wohngefühl und das bei direkter Stadtnähe. Ein besonderes Highlight ist das historische Klosterareal mit seinem schönen Innenhof, der den Bewohnern als nutzbarer, grüner Rückzugsort zur Verfügung steht. Der Fernblick ins Tal unterstreicht die besondere Wohnqualität des Quartiers. Die Anbindung an Bus u. Bahn ist optimal und wichtige Einrichtungen wie Schulen, Supermärkte und Nahversorgung sind bequem und schnell erreichbar.
Energieeffizenz
- Energieausweis-Art:
- Bedarf
- Energieausweis gültig bis:
- 29.02.2036
- Endenergiebedarf:
- 15,30 kWh/(m²*a)
- Primärenergieträger:
- WAERMEPUMPE
- Heizenergieverbrauchskennwert:
- 15,30 kWh/(a m²) kWh/(m²*a)
- Energieeffizienzklasse:
- A
- Energieausweis-Jahrgang:
- nicht verfügbar
- Energieausweis-Gebäudeart:
- Wohngebäude
Energieeffizenz
Downloads & Links


