Rollstuhlgerechte 2-Zimmer-Neubauwohnung in Freudenburg - nur mit WBS!
Preise
- Nettokaltmiete:
- 519,55 €
- Netto-Kaltmiete pro m²:
- 7,40 €
- monatl. Betriebs-/Nebenkosten:
- 140,42 €
- monatl. Heizkosten:
- 105,32 €
- Warmmiete:
- 765,29 €
- Kaution:
- 1.558,65 €
Flächen
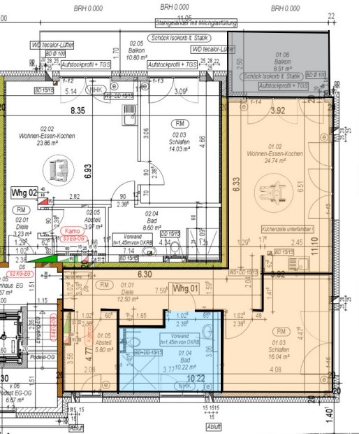
- Wohnfläche:
- 70,21 m²
- Zimmer insgesamt:
- 2
- Etage:
- EG
Ausstattung
Wir vermieten ab dem 16.01.2026 diese hochwertige 2-Zimmer-Neubauwohnung mit ca. 73,55 m². Die Wohnung verfügt über eine großzügige Raumaufteilung mit Schlafzimmer, Wohnzimmer, Küche, Badezimmer und Abstellraum.
Die Wohnung liegt Erdgeschoss ist barrierefrei und rollstuhlgerecht gebaut. Ein Aufzug sorgt im gesamten Gebäude für barrierearmen Zugang. Ein Balkon lädt zum Entspannen ein, und ein Kellerraum bietet zusätzlichen Stauraum.
Alle Räume sind mit einer Fußbodenheizung ausgestattet, das Schlafzimmer mit Parkettboden, die übrigen Räume mit pflegeleichten Fliesen.
Die Wohnung wird mit einer modernen Einbauküche inklusive Spülmaschine und weiterer Elektrogeräte ausgestattet und ist sofort bezugsfertig.
Hinweis: Da es sich um eine öffentlich geförderte Wohnung handelt, ist eine Anmietung nur mit einem gültigen Wohnberechtigungsschein möglich.
Bei den in der Anzeige gezeigten Fotos handelt es sich um Musterfotos.
- Heizungsart: Fußbodenheizung
- Badausstattung: Dusche
Zustand
- Baujahr:
- 2025
- Zustand:
- Erstbezug
Lage & Infrastruktur
Freudenburg liegt im Landkreis Trier-Saarburg in Rheinland-Pfalz direkt an der Grenze zum Saarland. Das Dorf befindet sich am Rand des Naturparks Saar-Hunsrück, etwa 7 km nordöstlich von Saarburg und 30 km südwestlich von Trier. Die luxemburgische Grenze ist rund 15 km entfernt.
Die Umgebung ist grün und ruhig, ideal für ein angenehmes und naturnahes Wohnen. Trotz der ländlichen Lage ist Freudenburg gut über die Landesstraßen L133 und L134 angebunden. Derzeit entsteht im Ort eine neue NORMA-Filiale, die die lokale Infrastruktur und Lebensqualität zusätzlich verbessert.
Energieeffizenz
Downloads & Links





